PROPERTY SEARCH
3135 Rocks Farm Ct, Charlottesville VA 22903
- $2,245,000
- MLS #:673280
- 5beds
- 4baths
- 1half-baths
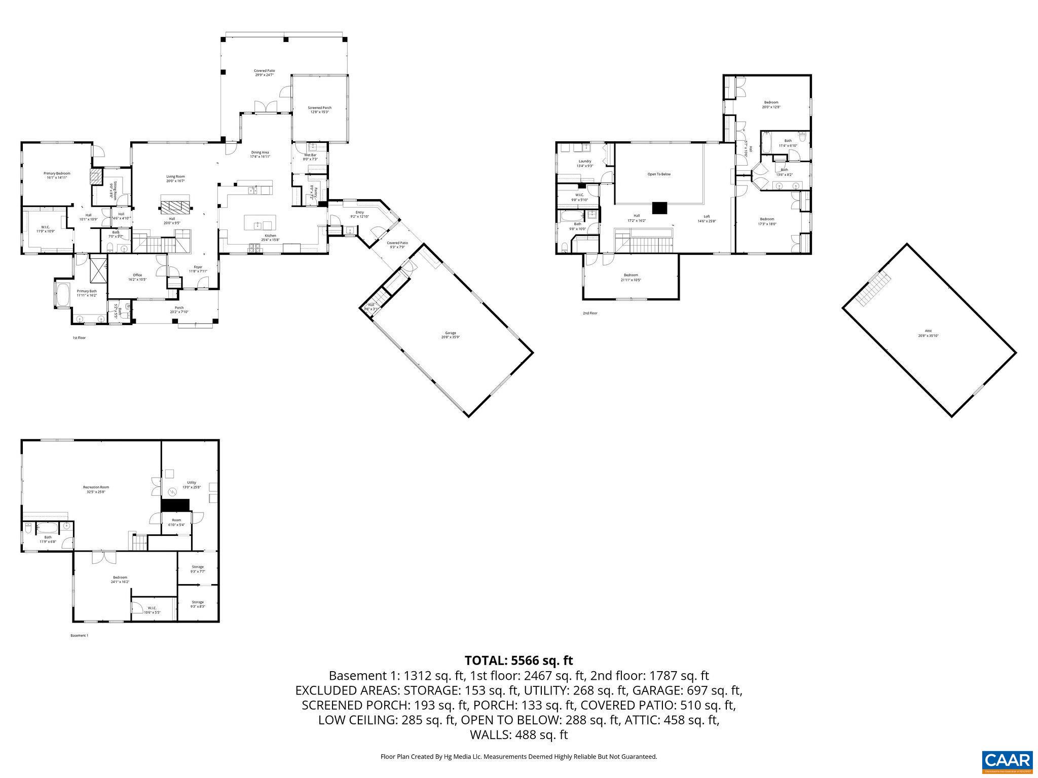
- 6,227sq ft
- 2.68acres
Square Ft Finished: 6,227
Square Ft Unfinished: 347
Neighborhood: The Rocks
Elementary School: Murray
Middle School: Henley
High School: Western Albemarle
Property Type: residential
Subcategory: Detached
HOA: Yes
Area: Albemarle
Year Built: 2005
Price per Sq. Ft: $360.53
Nestled privately overlooking Blue Ridge views, this totally custom 5 bedroom 4.5 bath Arts & Crafts farmhouse is truly a remarkable offering built by the current owners who spared no expense creating this unique residence. From the beautiful heart pine floors to the incredible dry laid stonework at the massive family room fireplace to the wonderful bluestone terrace & Buckingham slate covered patio & screened-in porch overlooking the views, there are wonderful, timeless finish details at every turn. The 3 car garage is accessed via covered breezeway. A small creek runs along the back of the property. Other noteworthy features incl' an expansive 1st floor primary, whole house generator, fiber internet, and 4 HVAC zones w/ hydrothermal heating w/ ultra-high efficiency gas fired boiler. The large mudroom has sink & built-in cubbies. Flooring incl' heart pine, Buckingham slate & marble. Other notable extras include a wet bar, extensive wainscotting & built-ins incl' window seats. The kitchen showcases completely custom, solid wood cabinetry, honed granite counters, 48" fridge, Wolf gas cooktop w/ commercial hood, warming drawer, double ovens & wooden center island. Please see the detailed list of features in the documents tab.
1st Floor Master Bedroom: DoubleVanity, PrimaryDownstairs, WalkInClosets, BreakfastBar, EatInKitchen, HighCeilings, HomeOffice, KitchenIsland, Mud
HOA fee: $0
View: Mountains
Security: SecuritySystem, SmokeDetectors
Roof: Architectural,Composition,Shingle
Driveway: FrontPorch, Patio, Porch, Screened, Stone
Windows/Ceiling: DoublePaneWindows
Garage Num Cars: 3.0
Electricity: Generator
Cooling: CentralAir
Air Conditioning: CentralAir
Heating: Central, MultiFuel, NaturalGas
Water: Private, Well
Sewer: SepticTank
Features: CeramicTile, Marble, Slate, Wood
Basement: ExteriorEntry, Full, InteriorEntry, PartiallyFinished, WalkOutAccess
Fireplace Type: One, WoodBurning
Appliances: BuiltInOven, DoubleOven, Dishwasher, GasCooktop, Microwave, Refrigerator, Dryer, Washer
Laundry: Sink
Amenities: None
Kickout: No
Annual Taxes: $18,072
Tax Year: 2026
Legal: The Rocks 8
Directions: 64W to Ivy exit, L on Dick Woods, L on Rocks Farm Dr, R on Rocks Farm Ct, home on L
Days on Market: 64
Updated: 4/22/26
Courtesy of: Loring Woodriff Real Estate Associates
Listing Office: Loring Woodriff Real Estate Associates
